Одноэтажный каркасный дом, 127.59 м²
Проект: КД-100 | Размер: 10×13 м | Цена: от 4 580 000 руб.
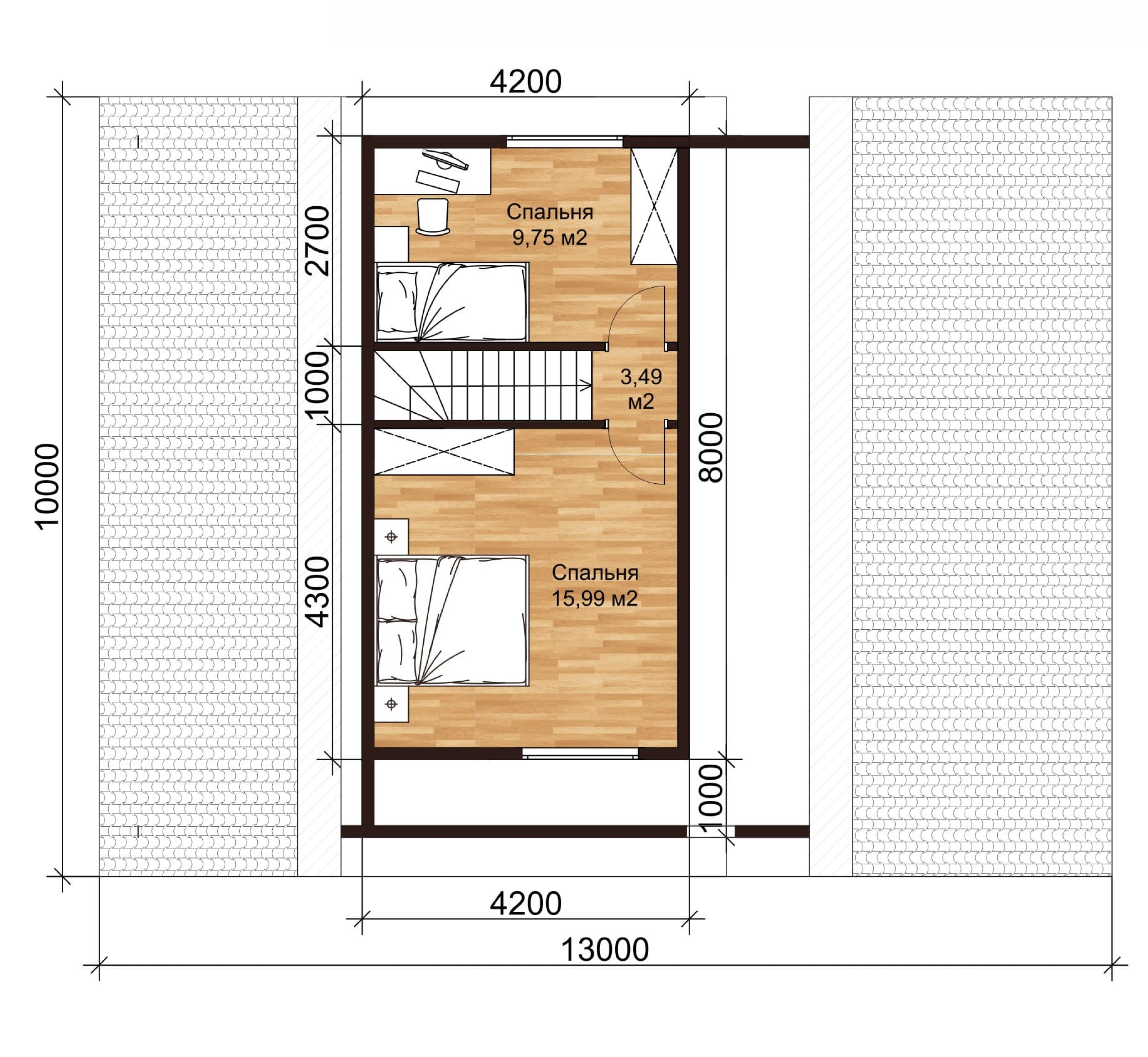
Оригинальный коттедж КД-100 – это продуманная планировка и финский комфорт, отличительной особенностью которого является эффектная, разноуровневая конструкция крыши. Проект этого дома выполнен в современном стиле с элементами модных тенденций в домостроении – большими окнами и строгими фасадами. Войдя в дом, Вы окажитесь в теплой прихожей с гардеробом, также на первом этаже запланированы две спальни, комбинированная кухня-гостиная, с/у, крытая терраса и тех. помещение. Второй этаж занят двумя комнатами, которые можно использовать в качестве детских.
Проектная документация дома включает в себя:
- ведомость чертежей, общие данные о проекте
- планировки этажей, чертежи вертикального, продольного и поперечного сечения дома
- схемы расположения элементов каркаса дома, лестниц, перекрытий, стропильной конструкции
- детальные чертежи отдельных узлов
- спецификации изделий и материалов
[ ! ] При необходимости архитектор бесплатно внесет любые
изменения в проект дома под Ваши вкусы и задачи.


Архитектор компании
"Каркасные дома №1"
Каркас дома без утепления. На данной стадии можно остановить строительство на любой срок.
«Закрытый контур» включает в себя:
- Перепланировка дома
- Полный проект дома
- Доставка до 50км
- Обеспечение туалетом и бытовкой на объекте
- Видеокамера для видеонаблюдения за процессом строительства
- Фундамент Железобетонная монолитная плита 250мм
- Обвязка: Гидроизоляция по фундаменту, устройство нижней обвязки из антисептированного бруса 150Х150/200. Опорные столбы, мауэрлаты, декоративные элементы 100/150/200 мм, строганные
- Каркас: Каркас дома из сухой строганой доски камерной сушки высшего сорта. Силовой каркас, хедеры, ригеля, обвязки каркаса - 50Х150, стропильная система, перекрытия - 50Х200, перегородки- 50Х100, 25Х100 мм
- Окна, дверь Окна и балконные двери белые металлопластиковые с двухкамерным стеклопакетом 4/12/4/8/4. Профиль Rehau. Входная дверь металлическая усиленная Россия
- Кровельная система Кровельное покрытие металлочерепица с комплектом фасонных изделий, гидро ветрозащитной мембраной, обрешетка, контр обрешетка 45/45 мм
- Внешняя отделка Имитатор бруса "Карельский профиль" окрашенный в производственных условиях + ветро теплоизоляционными плиты БЕЛТЕРМО TOP 25мм., шип-паз , устройство водоотливной металлической планки по периметру дома, оконные отливы, наличники окон и дверей. Гидроизоляция террас, балконов
- Комплект водосточной системы «Docke Premium» ____________________________________________
- Утепление дома Теплоизоляция полов и потолков утеплителем Rockwool 200 мм, теплоизоляция стен утеплителем Rockwool 150 мм, шумоизоляция перегородок Rockwool 100мм. Пароизоляционные и ветро влагозащитные мембраны монтируются внахлест
- Напольное покрытие Устройство полов ВДСПШ Quick Deck Proffessional 22мм по сухой строганной контр обрешетке
- Внутренняя отделка Внутренняя отделка стен и потолков гипсокартоном «Knauf». Лестница строительная
- Напольное покрытие террас, балконов Устройстро полов террас и балконов выполняется из лиственницы 28 мм
- Ограждения террас, балконов Устройство ограждений террас и балконов по проекту
Каркас дома с утеплением. Можно приступать к внутренней отделке дома.
«Теплый контур» включает в себя:
- Перепланировка дома
- Полный проект дома
- Доставка до 50км
- Обеспечение туалетом и бытовкой на объекте
- Видеокамера для видеонаблюдения за процессом строительства
- Фундамент Железобетонная монолитная плита 250мм
- Обвязка: Гидроизоляция по фундаменту, устройство нижней обвязки из антисептированного бруса 150Х150/200. Опорные столбы, мауэрлаты, декоративные элементы 100/150/200 мм, строганные
- Каркас: Каркас дома из сухой строганой доски камерной сушки высшего сорта. Силовой каркас, хедеры, ригеля, обвязки каркаса - 50Х150, стропильная система, перекрытия - 50Х200, перегородки- 50Х100, 25Х100 мм
- Окна, дверь Окна и балконные двери белые металлопластиковые с двухкамерным стеклопакетом 4/12/4/8/4. Профиль Rehau. Входная дверь металлическая усиленная Россия
- Кровельная система Кровельное покрытие металлочерепица с комплектом фасонных изделий, гидро ветрозащитной мембраной, обрешетка, контр обрешетка 45/45 мм
- Внешняя отделка Имитатор бруса "Карельский профиль" окрашенный в производственных условиях + ветро теплоизоляционными плиты БЕЛТЕРМО TOP 25мм., шип-паз , устройство водоотливной металлической планки по периметру дома, оконные отливы, наличники окон и дверей. Гидроизоляция террас, балконов
- Утепление дома Теплоизоляция полов и потолков утеплителем Rockwool 200 мм, теплоизоляция стен утеплителем Rockwool 150 мм, шумоизоляция перегородок Rockwool 100мм. Пароизоляционные и ветро влагозащитные мембраны монтируются внахлест
- Напольное покрытие Устройство полов ВДСПШ Quick Deck Proffessional 22мм по сухой строганной контр обрешетке
- Комплект водосточной системы «Docke Premium» ____________________________________________
- Внутренняя отделка Внутренняя отделка стен и потолков гипсокартоном «Knauf». Лестница строительная
- Напольное покрытие террас, балконов Устройстро полов террас и балконов выполняется из лиственницы 28 мм
- Ограждения террас, балконов Устройство ограждений террас и балконов по проекту
Готовый дом. Можно приступать к установке инженерных систем и чистовой отделке.
«Внутренняя отделка » включает в себя:
- Перепланировка дома
- Полный проект дома
- Доставка до 50км
- Обеспечение туалетом и бытовкой на объекте
- Видеокамера для видеонаблюдения за процессом строительства
- Фундамент Железобетонная монолитная плита 250мм
- Обвязка: Гидроизоляция по фундаменту, устройство нижней обвязки из антисептированного бруса 150Х150/200. Опорные столбы, мауэрлаты, декоративные элементы 100/150/200 мм, строганные
- Каркас: Каркас дома из сухой строганой доски камерной сушки высшего сорта. Силовой каркас, хедеры, ригеля, обвязки каркаса - 50Х150, стропильная система, перекрытия - 50Х200, перегородки- 50Х100, 25Х100 мм
- Окна, дверь Окна и балконные двери белые металлопластиковые с двухкамерным стеклопакетом 4/12/4/8/4. Профиль Rehau. Входная дверь металлическая усиленная Россия
- Кровельная система Кровельное покрытие металлочерепица с комплектом фасонных изделий, гидро ветрозащитной мембраной, обрешетка, контр обрешетка 45/45 мм
- Внешняя отделка Имитатор бруса "Карельский профиль" окрашенный в производственных условиях + ветро теплоизоляционными плиты БЕЛТЕРМО TOP 25мм., шип-паз , устройство водоотливной металлической планки по периметру дома, оконные отливы, наличники окон и дверей. Гидроизоляция террас, балконов
- Утепление дома Теплоизоляция полов и потолков утеплителем Rockwool 200 мм, теплоизоляция стен утеплителем Rockwool 150 мм, шумоизоляция перегородок Rockwool 100мм. Пароизоляционные и ветро влагозащитные мембраны монтируются внахлест
- Напольное покрытие Устройство полов ВДСПШ Quick Deck Proffessional 22мм по сухой строганной контр обрешетке
- Комплект водосточной системы «Docke Premium»
- Внутренняя отделка Внутренняя отделка стен и потолков гипсокартоном «Knauf». Лестница строительная
- Напольное покрытие террас, балконов Устройстро полов террас и балконов выполняется из лиственницы 28 мм
- Ограждения террас, балконов Устройство ограждений террас и балконов по проекту
Единая плита под всем домом. Выемка грунта, геотекстиль, песчаная подушка, гидроизоляционный материал, 2-армирование, опалубка, бетон М-300.
Подходит для всех типов грунтов, бывает утепленный и не утепленный, с ростверком или без ростверка. Также производим монтаж УШП плит.

Фундамент в виде ленты из опалубки, опоясывающей периметр здания. Выемка грунта, геотекстиль, песчаная и щебеночная подушка, гидроизоляционный материал, армирование, опалубка, бетон М-300
Подходит для сложных грунтов с близкими подпочвенными водами, подвижных почвах с высоким содержанием песка, а также участках со сложным рельефом.

Один из самых популярных для домов любой формы, веса и площади.
Подходит для грунтов с высокими подпочвенными водами, а также на почвах с низкой несущей способностью, с большими перепадами рельефа. Их монтируют на подвижных грунтах-плывунах.

Используются опоры из бетона, которые забиваются специальной техникой.
Подходит для грунтов с высокими подпочвенными водами, а также на почвах с низкой несущей способностью, с большими перепадами рельефа. Сваи используют для сооружения зданий любой этажности.

провести выезд специалиста на участке:
Специалист приедет на участок в удобное для Вас время и проведет геодезические изыскания:
- визуальный осмотр перепадов высот ландшафта местности
- географическая и геодезическая привязка будущего дома к местности
- осмотр дренажных канав по периметру участка
- пробное бурение при свайных фундаментах
Вся процедура займет 1-1.5 часа. Этих данных будет достаточно для определения вида фундамента.
Закажите бесплатный выезд специалиста на Ваш участок:







«Каркасные дома №1»:
Ваш каркасный дом?
- зададим несколько уточняющих вопросов;
- рассчитаем точную смету в течение 24 часов;
- дадим полное понимание по срокам, стоимости, гарантиям;

Мы работаем с соблюдением российских норм и стандартов строительства и используем финские технологии, поэтому наши дома служат нескольким поколениям.
Стоимость дома сопоставима с ценой небольшой 2-х комнатной квартиры в Нижнем Новгороде.
Все проекты можно посмотреть в каталоге проектов.






3 482 700 руб.




3 934 850 руб.

Полный ассортимент проектов с ценами.

менеджер по работе
с клиентами












































































